Rua Concriz, 190 C 3 - São Braz - Curitiba, PR - CRECI: 10.272-J
WhatsApp
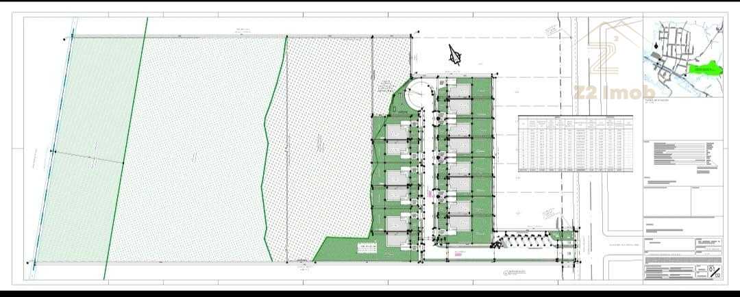
Terreno de 18.138 m à Venda em Balsa Nova com Projeto para 14 Lotes
Ref.: vwe-3542
R$ 900.000,00
Iptu
R$ 6742,43

Descrição

Área à Venda em Balsa Nova: 18.138,70 m² | Projeto Inicial Aprovado para 14 Lotes

Descubra uma excelente oportunidade para investir ou desenvolver em uma das regiões mais promissoras da Grande Curitiba!
Esta área de 18.138,70 m² está estrategicamente localizada em Balsa Nova e já conta com projeto inicial aprovado para a criação de 14 lotes, oferecendo um ponto de partida ideal para loteamentos residenciais ou projetos personalizados.

Principais Diferenciais do Terreno
Projeto inicial aprovado: planejamento prévio para 14 lotes, facilitando o processo de licenciamento e reduzindo prazos.

Infraestrutura pronta na frente da propriedade:
Rede de esgoto
Energia elétrica
Fácil conexão ao sistema urbano
Terreno amplo e com excelente topografia, favorecendo obras mais rápidas e econômicas.
Testada ampla, proporcionando acessos diversos e boa visibilidade.
Região com expansão urbana acelerada, ideal para loteamentos, condomínio horizontal, chácara urbana planejada ou até projetos mistos.

Localização Estratégica
A poucos minutos do centro de Balsa Nova, o terreno está inserido em uma região em constante desenvolvimento, com forte movimento econômico e alta demanda por novos empreendimentos. No entorno, você encontra:
Comércio variado
Escolas e unidades de ensino
Mercados e serviços essenciais
Restaurantes e opções gastronômicas
Fácil acesso a rodovias importantes, facilitando o trânsito entre Balsa Nova, Curitiba e municípios vizinhos

A área oferece uma combinação rara de qualidade de vida, conveniência urbana e potencial de valorização, tornando-se ideal tanto para investidores quanto para construtores que buscam novas áreas para desenvolvimento.

Por que investir aqui?
Região aquecida para loteamentos e condomínios
Crescimento constante do município
Infraestrutura urbana consolidada
Potencial elevado de valorização a curto e médio prazo
Oportunidade exclusiva em metragem e localização

Garanta agora uma área diferenciada em um município que segue em ritmo acelerado de expansão.
Aproveite esta chance de investir com segurança e visão de futuro!
Esperamos que tenha gostado dessa breve descrição do imóvel à venda. Se você se interessou ou teve alguma dúvida, não hesite em entrar em contato conosco para agendar uma visita ou obter mais informações. Caso prefira atendimento via WhatsApp, basta clicar no botão verde ao lado >>> #JR

Dimensões

18138,70 (m²) Área Total
18138,70 (m²) Área Privativa
18138,70 (m²) Área do Terreno

Localização

Chamar no WhatsApp Agora!
Compartilhe