Rua Concriz, 190 C 3 - São Braz - Curitiba, PR - CRECI: 10.272-J
WhatsApp
PROPRIEDADE TERRENO - Edifício Prédio à Venda, Centro Batel, CURITIBA - PR
Ref.: kz9-12
1 Sala(s)
7 Cozinha(s)
5 Banheiro(s)
7 Quarto(s)
3 Garagem Coberta
2 Garagem Descoberta
Área Serviço
R$ 3.990.000,00

Descrição

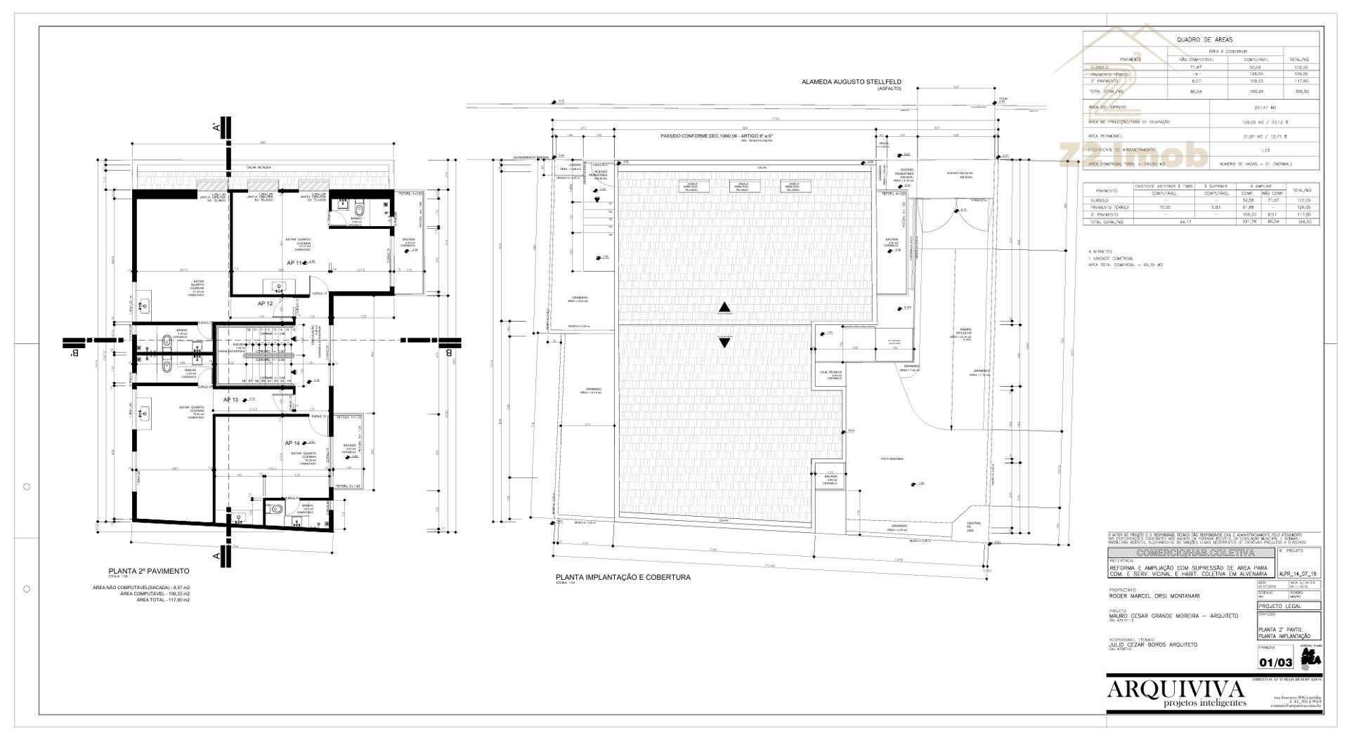
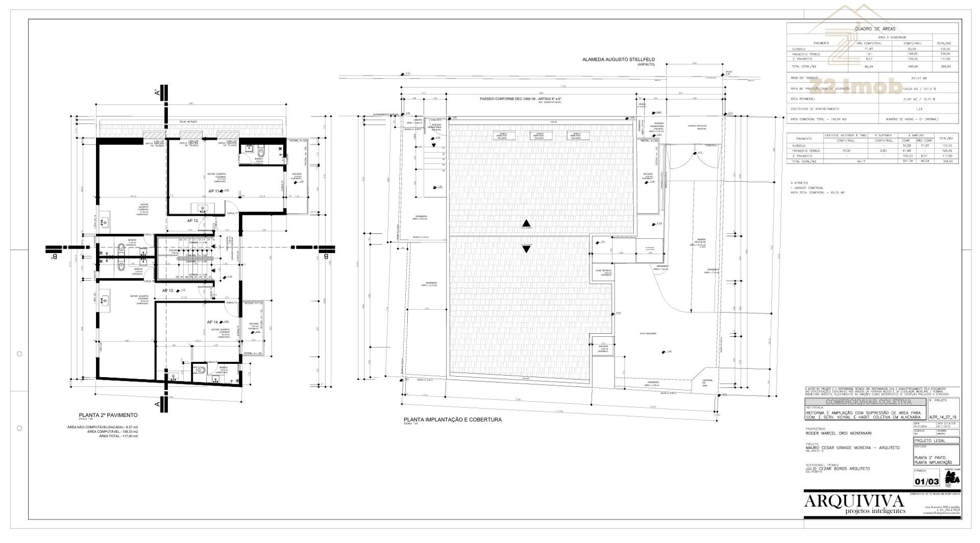
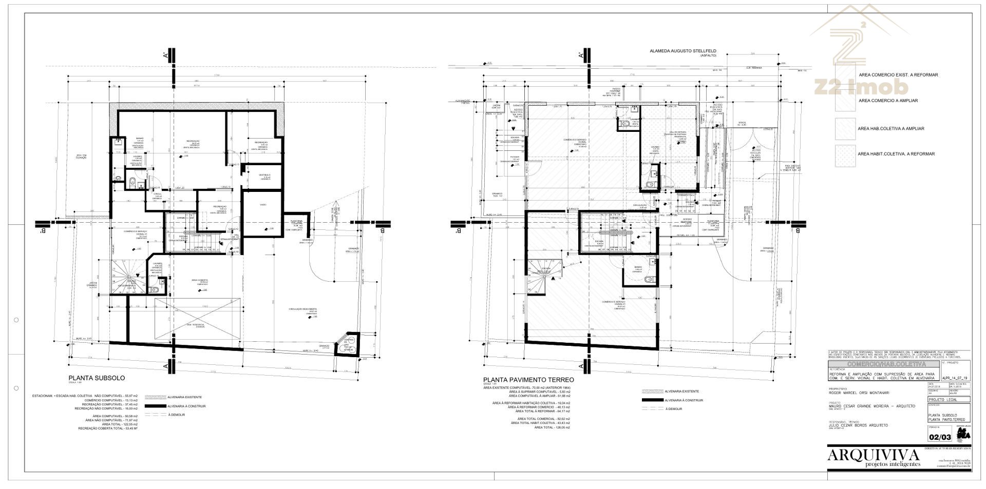
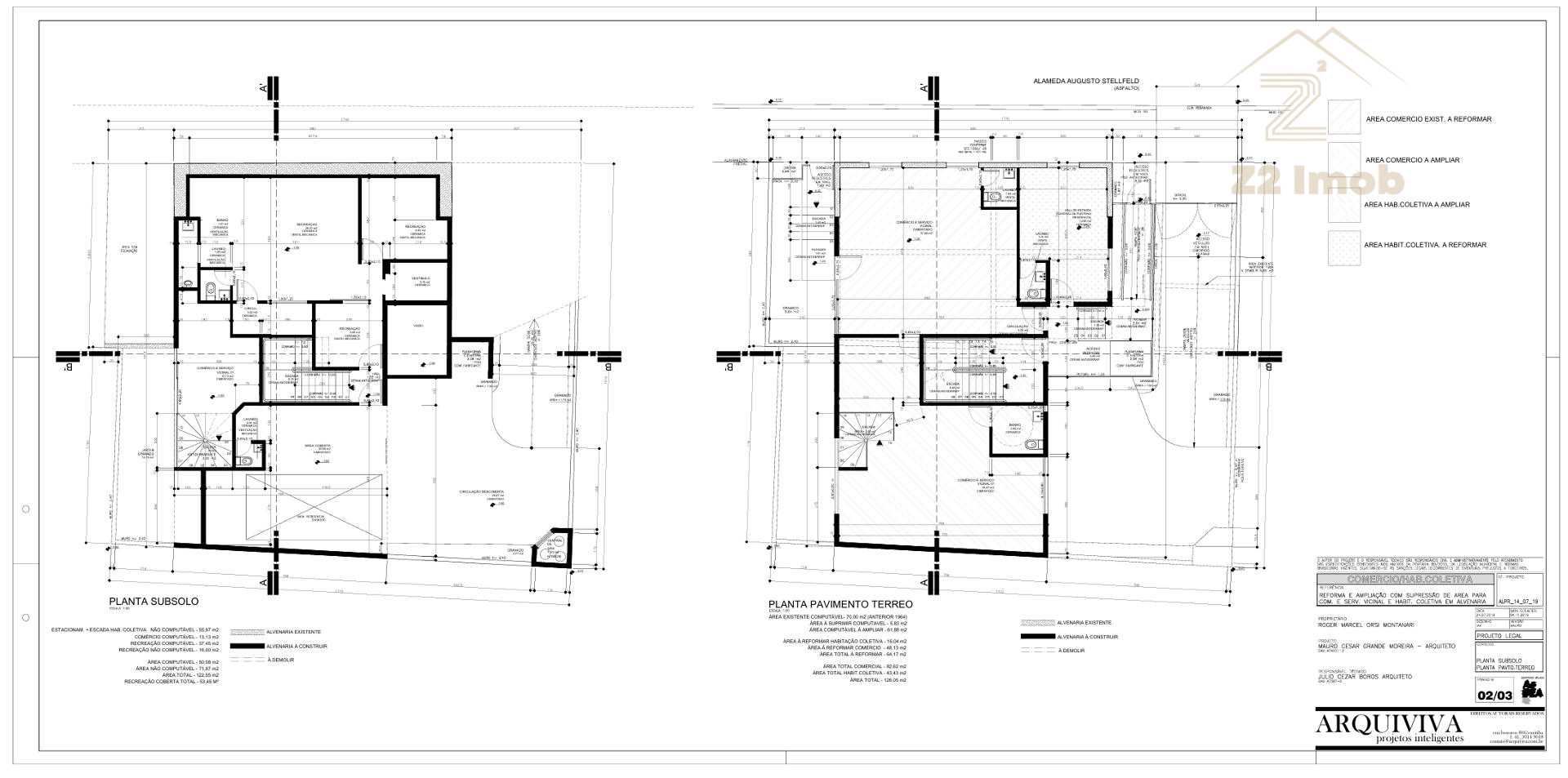
PROPRIEDADE COM PROJETO APROVADO (COMERCIAL + RESIDENCIAL) - CENTRO / BATEL - CURITIBA
Alameda Augusto Stellfeld - Terreno com 251,47 m² - Área Total Construída 365,50 m² - Matrícula 64.063

Oportunidade de investimento em uma das Regiões mais estratégicas de Curitiba, entre o Centro e o Batel.
Imóvel Misto (Comercial + Residencial), em Terreno com 251,47 m², com projeto arquitetônico aprovado para Empreendimento de uso misto, ideal para renda e valorização patrimonial.

- O Atual projeto contempla:

Lojas / Salas Comerciais no térreo (comércio e serviço vicinal)
Unidades Residenciais tipo Studio (estar/quarto/cozinha)
Áreas de Recreação Coberta e Descoberta
Circulações, Escadas e plataforma elevatória, priorizando acessibilidade
Vagas / área de manobra e rampas de acesso

- Pensado para ótimo aproveitamento do potencial construtivo, o projeto distribui de forma eficiente áreas comerciais e habitacionais, com:

Fachada com alta visibilidade para a Alameda Augusto Stellfeld
Sacadas, laje técnica e áreas de lazer para maior conforto dos usuários
Produto ideal para locação de lojas + Studios (renda recorrente) ou para revenda das unidades após a incorporação

- Destaques da localização:

Entre Centro e Batel, Região de forte vocação Comercial e Residencial
Excelente circulação de pessoas e veículos
Fácil acesso a serviços, transporte público, comércios, bancos, gastronomia e infraestrutura urbana completa

- Perfil do investidor ideal:

Incorporador, construtor ou investidor que busca um terreno compacto com um ótimo Potencial construtivo, para Retrofit
muito bem localizado, com projeto pensado para alta liquidez
Indicado para produtos de ticket médio acessível, com boa saída de venda e locação

- Situação atual e ocupação:

Imóvel em uso atualmente
Prazo estimado de desocupação: até 30 dias após a venda
Ou, se acordado em negociação, até 60 dias a partir da assinatura

- Documentação:

Matrícula nº 64.063 - 1º Registro de Imóveis de Curitiba/PR
Documentação em ordem para transmissão da propriedade

VALOR DE VENDA:
R$ 3.990.000,00
Proprietários Abertos para Analisar Propostas e Negociações!

(Entre em contato para receber o estudo completo do projeto arquitetônico, potencial construtivo e análise de viabilidade.)

Características

Cobertura
Cozinha Planejada
Portão Eletrônico
Caixa Água
Churrasqueira
Varanda
Jardim Inverno
Sauna
Alarme
Interfone
Murado
Portão
Salão de festa(s)
Banheiro de Serviço
Telefone
Mobiliado
Semi-Mobiliado
12 Ar Condicionado
Porcelanto (Aquecido térreo e Subsolo) Piso
4 Pavimento
Aceita pet

Dimensões

,00 (m²) Área Total
465,29 (m²) Área Construída
365,50 (m²) Área Privativa
251,47 (m²) Área do Terreno
15,10 (m) Frente
17,10 (m) Fundos

Localização

Chamar no WhatsApp Agora!
Compartilhe